船舶海上试验主机功率决定方法研讨
张青波
南通中远海运川崎船舶工程有限公司 江苏南通 226005
0 引言
作为船舶动力系统的核心,主机功率的精确测定直接影响船舶航速、船舶能效等级认证(EEXI)、碳排放强度指标(CII)等关键参数的合规性验证。根据国际标准协会(ISO)15016 规范要求,海上试验中的功率测量误差目标需控制在± 2%以内。然而实际作业中,受制于海况波动、轴系振动及传感器漂移等复合干扰,功率测定的工程实现面临严峻挑战。本文通过梳理主流功率决定方法原理,提出"双源修正+动态校验"的复合式测量方案,旨在解决传统单点测量法的系统误差累积问题。
1 内燃机常用功率定义
ISO 15550:2016《内燃机功率的测定和测量方法-通用要求》,内燃机常用功率及其定义如表 1
表 1 内燃机常用功率

一般的,船舶海上试验所要计测的主机功率是曲轴输出功率(B.H.P.),即主机曲轴末端输出功率。
2 海上试验主机功率评估方法
现有的海上试验主机功率评估方法可以分为直接测量法和参数推定法。
2.1 直接测量法
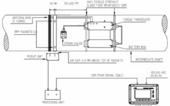
2.1.1 轴功率计
轴功率计可以对曲轴输出功率进行直接计测,主机带动曲轴在旋转过程中,在扭转力作用下,曲轴表面会产生机械变形
,这种因扭矩而产生的机械变形可以用粘贴在轴表面的应变片来测量。
图 1:轴功率计

如图 1,采用非接触式遥测应变技术,在主机曲轴输出端至第一道中间轴承间的中间轴上,尽量靠近主机的位置布置全桥式应变片组,采样频率 ≥10kHz 轴功率计计测功率计算公式:

式中:P—计测功率,单位 kW;M—测量扭矩,单位 kNm;n—曲轴转速,单位 rpm。
轴功率计计测精度取决于轴功率计自身及其调试精度,同时稳定性受海况的外部因素影响。
2.1.2 气缸压力计
如图 2,通过主机气缸上安装压力传感器,可以在线计实时计测每各气缸的平均有效压力。由平均有效压力可以得到主机实际发出的功率,如要得到需要的曲轴输出功率,还需要考虑主机机械效率。一般的,默认情况下摩擦损失按 1bar 平均有效压力考虑。
图 2:气缸压力计功率

气缸压力计计测功率计算公式:
P=C×(Pi-1)×n×N(2)
式中:P—计测功率,单位 kW;C—气缸常熟,无量纲;Pi—平均有效压力,单位 barG;
n—曲轴转速,单位 rpm;N—气缸总数,无量纲。
气缸压力计计测功率取决于传感器精度,实际机械效率同默认值差别。一般的,在主机车间试验时,气缸压力计计测功率可以通过可靠设备(如水力测功器)进行微调、校核。
2.2 参数推定法
2.2.1 增压器转速法
利用主机台架试验数据生成增压器功率曲线,如图 3,将实测数据(增压器转速,扫气温度,大气压力)输入曲线获得主机功率的方法。
利用主机台架试验数据生成增压器功率曲线,如图 3,将实测数据(燃油齿条,主机转速)输入曲线获得主机功率方法。
图 3:增压器转速&燃油齿条功率

2.3 各功率评估方法实测误差分析
2.3.1 实测误差
图 4 是基于多船实际试航计测数据整理分析结果。

根据图 4 结果,各功率计测方法误差水平及稳定性水平如表 2。
表 2 常用功率评估方法误差

3 主机功率符合计测方案
基于前文对各主机功率计测方法原理以及实际误差水平的分析,为进一步降低误差水平和提高稳定性,本文提出“ 双源修正+动态校验” 的复合式测量方案。
双源修正功率计算公式:

式中:Q—双源修正功率,单位 kW ;P1—轴功率计计测功率,单位 kW;P2—燃油齿条法功率,单位 kW;修正系数, trianglelefteq ;修正系数, trianglelefteq 。
以上公式中修正系数初始默认值 a=-1 , b=2, 。对不同船型,修正系数 a&b 可以进行调整。
动态校验:利用轴功率计小时级数值对以上双源修正结果进行动态校验,对修正系数进行调整和优化。在某系列散货船上,利用以上提到的计测方案,确定的修正系数 a=-0.98 ,b=2.05。结果显示,实际功率误差控制在± 1% ,典型数据(占比约 65% 偏差控制在± 0.5% ,明显优于传统计测方式。详细数值如图 5。
图 5:“ 双源修正+动态校验” 实测误差

4 结论
本文提出了“ 双源修正+动态校验” 的计测方案,为包含航速、船舶能效等级认证(EEXI)、碳排放强度指标(CII)等重要船舶性能的确认提供高精度主机功率计测值。
另外,笔者认为此“ 双源修正+动态校验” 主机功率计测模型仍有修正和提高的空间,将尝试利用人工智能(AI)技术对模型进行不断优化。
参考文献:
[1]ISO 15016 Ships and marine technology—Guidelines for the assessment of speed and power performance by analysis of speed trial data
[2] MAN Energy Solutions. PrimeServ Academy: Engine Performance Analysis[M]. 2022.
[3]现代商船马力估算方法、船舶性能实验及理论研究 上海交通大学 马宁
作者简介:张青波 (1983-),男,本科,工程师,研究方向:船舶轮机设计与研究。