一种以结构钢柱作支撑点的塔吊基础安装技术
陈飞
上海建工集团股份有限公司 上海
前言
常规独立式基础塔吊一般在基坑结构施工前设置,一般需要经历塔吊桩基→土方开挖→基础承台施工阶段,该阶段往往施工条件好、位置及选型不受周边环境限制,且技术相对成熟。而如果当主体结构大面开展后需要更换塔吊时,现场施工状况一般无法满足塔吊桩基施打、塔吊基础及塔吊安装条件,且往往该阶段工期及生产压力较大,塔吊调整需要从技术方案可行性、工期资金等各方面统筹考虑。
该文以嘉兴南湖未来广场项目为例,该项目为大型场馆,地下室为混凝土结构,地上为钢框架结构。前期因图纸信息不足、结构本身特点原因,导致上部钢结构吊装策划时发现原塔吊无法满足吊装生产需求,故考虑在地下室主体结构施工完成后,更换塔吊位置及选型。通过利用结构钢柱作为支撑点设置钢转换梁塔吊基础,利用有限元计算软件模型塔吊安装及运行工况,保证塔吊安装及作业安全,也为后续类似工程提供一定的借鉴价值。
1、项目概况
1.1 项目概况
嘉兴南湖未来广场项目属于嘉兴百年百项重大工程,嘉兴市“十大标志性建筑”之一,也是嘉兴市最大的综合性场馆。项目紧邻嘉兴市城市中轴线,毗邻嘉兴大剧院、嘉兴体育中心;地理位置优越,社会价值较高。

1.2 结构概况
本工程主要包含三个单体工程:科技中心、文化中心一和妇儿中心。其主体钢框架(钢柱、钢梁)及单体间的三个钢连廊(钢梁)组成,钢柱有圆管柱和箱型柱两种形式,钢梁主要为型钢梁。各单体工程之间连廊连接。总体钢结构主要形式为“钢框架+屈曲约束支撑”体系,总用钢量约为1.7万吨。
1.3 塔吊概况
本工程上部钢结构吊装共计布置 5 台塔吊,塔吊基础利用地下室伸出顶板的钢柱作为支点,采用转换钢梁基础形式;各塔吊转换梁截面尺寸主要为 B1400X1000X25X40、B1320X700X25X32、B1300X700X12X25 三种尺寸,材质采用Q355B。整体上分为上层2 根和下层2 根钢梁,合计20 根钢梁,框架形式刚接固定。具体塔吊基础参数及布置如下:

2、 工程特点及实施难点
2.1 现场施工条件复杂,塔吊布置要求高
本工程地上整体为钢框架结构,单根钢构件最重达16T,存在斜柱、长梁等构件。屋面为大跨度曲面网壳钢结构,建筑整体跨度较大,对于塔吊的选型、塔吊位置要求较高。且地上塔吊设置时地库顶板已施工完成,无法利用基础底板作为塔吊基础,施工条件相对复杂,故对塔吊基础工艺选择要求较高。
2.2 工期紧张,生产压力大
本工程地上阶段工期紧张,塔吊重新布局时间紧迫。塔吊安装及拆除施工工况不同,塔吊布局需提前考虑拆除规划和路径预留。结合结构设计、施工组织及安全管控等多环节协同解决,尤其在工期紧张时需一次部署到位,避免再次拆装,故需要安全性、经济性以及可行性方面统筹考虑。
3、主要施工技术
3.1 塔吊位置选择
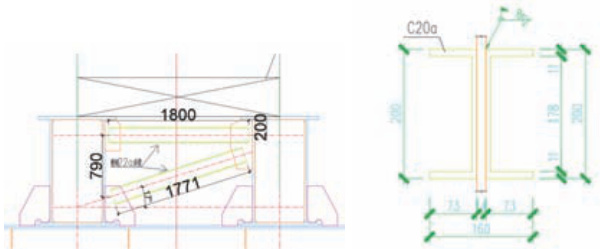
本项目在结合地上钢结构实际情况,在场馆中心地带选择塔吊位置,使得塔吊吊装发挥最大功效。因图纸设计地上钢柱下插生根到地库中板,使得地库结构完工后,地下室钢柱伸出地库顶板约1.2\~1.5m,故利用四根结构钢柱作为支撑受力点,焊接钢平台转换梁基础。
以科技馆 1# 塔吊为例,根据科技中心地上钢结构特点,1# 塔吊采用 ST8075 型塔吊,布置于 BJ轴线交 B11\~B13 之间。与塔吊基础梁连接的型钢混凝土柱 3 根为 CP600X30, 钢材材质为 Q390C; 1 根为 CP800X50, 钢材材质为 Q420GJC, 混凝土强度等级均 C50 ;钢柱伸出顶板 1.3m⨀ 。

1# 塔吊基础上层钢梁采用 2 根 B1400X1000X25X40,下层钢梁采用 2 根 B1320X700X25X32,上层钢梁之前采用普通槽钢22a 斜撑固定。

3.2 塔吊基础施工工艺(1)总体安装技术路线
塔吊转换梁利用塔吊安装机械吊装至塔吊点位,提前根据点位布置画出转换梁位置,使用测量工具控制转换梁标高和水平误差,并与钢柱柱头有效焊接固定,形成稳定结构体系。塔吊基础施工整体流程为:点位放线→转换梁下层钢梁吊装→下层钢梁复测→下层钢梁固定→点位放线→转换上层钢梁吊装→塔吊转换上层钢梁复测→上层钢梁固定→相关固定板、劲板安装→整体复测;
(2)塔吊基础吊装工况
以科技馆 1# 塔吊为例,因塔吊位置位于场馆中间区域,且地下室顶板无法满足重型吊装设备作业。故在场馆南侧硬化路面上采用350T 履带吊进行塔吊基础吊装。
1# 塔吊基础转换梁采用 350T 履带吊进行安装,停放位置位于南侧会展道路上 ( 停放位置同塔吊安拆时履带吊停放位置,具体可见详图),南侧道路宽 8m,厚度 200,采用 C20 混凝土浇筑,内配直径 14@200 单层双向钢筋。

1# 塔吊基础安装最不利况分析:最大单构件重量9.9T,吊装半径58m, 起重臂臂长 84m ,履带吊起重量19t,故满足吊装需求。
(3)转换梁安装流程
1)钢梁加工
转换梁截面尺寸为箱型,其各板材采用 Q355B 材质,尺寸见下图所示,整体在具有资质的加工厂内加工焊接。板材拼接缝为单面坡口,采用埋弧焊焊接,焊接质量等级一级。焊接完成后需进行焊缝探伤并出具报告。

2)钢梁吊耳设计
根据钢梁配置情况,除另外新加工的转换梁可在工厂内进行吊耳安装焊接,其余自有钢梁需在现场焊接吊耳,因此需对吊耳设计保证安全。
自有钢梁最大重量约为 15t,钢丝绳吊装角度 60∘ ,经计算钢丝绳承受拉力约为 13t,计算过程如下:

F=G×sinα=150× √ 3/2=13t
按照吊耳设计原则要求,其吊耳板设计尺寸和焊接要求见下图所示:

上述吊耳设计尺寸安装焊接在钢梁L/4 处,双面角焊缝,焊缝高度
3)钢梁复测
在吊装钢梁前对钢梁底板标高、钢柱焊接位置标高进行复测,并按照设计标高要求放线标记;下层钢梁在吊装过程中,需不断复测钢梁标高和水平度,保证其水平误差不大于 1mm ;在上层钢梁吊装前,对上层钢梁安装点位进行测量放线,画出安装位置;上层钢梁吊装后,对其标高和水平度复测,并检查与下层钢梁的安装误差,是否按照点位画线安装;加劲板、固定板等按照设计图标注进行安装焊接;
4)钢梁焊接节点
下层转换钢梁与钢柱之间连接板采用单边衬垫坡口围焊焊接,其焊缝质量要求为一级,故在焊接完成后敲除焊渣后打磨,并经焊缝探伤质量合格后进入下道工序。其节点要求如下图所示:

下层钢梁与上层钢梁采用角焊缝围焊,焊脚尺寸 20mm,另在两侧焊接加劲板,加劲板焊接节点采用双面角焊缝围焊,焊脚尺寸 14mm 。其节点要求如下所示:

上层转换钢梁之间采用斜撑和支撑固定连接,支撑采用普通槽钢 22a,槽钢两侧与连接板双边围焊角焊缝,焊脚尺寸为8mm。其节点如下所示:

(4)塔吊基础钢梁焊接质量保证措施
塔吊基础钢梁焊接严格遵循钢构件焊接规范要求。本项目塔吊基础钢梁焊接要求质量等级为一级,施工过程中需严格把控焊接质量,并进行探伤监测。
3.3 数字化技术应用(1)塔吊位置模型校核

施工前基于塔吊基础数字化模型,进行塔吊位置的校核,包括与主体钢结构、屋面网壳结构是否冲突、所选位置是否满足塔吊基础及塔吊的安装及拆除要求。

(2)塔吊基础承载力及挠度计算

借助 MIDAS 计算软件,导入项目主体钢结构模型,选用梁单元模拟框架梁和柱。基础梁与型钢混凝土柱通过腹板焊接连接,上层基础梁与搁置在下层基础梁上,以铰接构造处理。
计算结果表明,在最不利荷载组合下,钢梁最大弯矩为 M=6579kN⋅m ,钢梁最大剪力为V=3565kN 。钢梁截面最大正应力为 σ=161.8N/mm2 < f=295 N/mm2 ,钢梁截面最大剪应力为τ=58.5N/mm2

计算结果表明,在最不利荷载组合下,上层钢梁最大挠度为8.52mm,最大挠跨比为为
(8.52-(7.96+2.26)/2)/7000=1/2052<[1/800],满足基础梁刚度要求 ;下层钢梁最大挠度为 8.21mm,最大挠跨比为为 δ/L=(8.21-1.43)/10500=1/1548<[1/800],满足基础梁刚度要求。塔身底部节点在塔吊不同的使用工况下,挠度各不相同,最大挠度差异值为 5mm,塔吊顶部水平位移与总高度之比 Δu/ H=5/4270=1/853。

原有结构承载力复核
针对与钢平台塔吊基础连接的 4 根钢柱,建立基础梁和钢柱的连接节点细部分析模式,分析模型荷载选取最不利组合下的结构内力,基础梁 - 钢柱连接节点在最不利组合的荷载作用下所有区域均保持弹性,满足受力要求。

同时,对钢柱延伸到基础的桩基进行承载力复核,确保塔吊作用下,塔吊基础及原有结构均满足承载力要求。

结束语
本项目通过研究并应用了一种利用结构钢柱作为支撑点的塔吊基础施工技术。一方面原结构钢柱承载力及稳定性较好,可以为塔吊基础提供良好的支撑性能;另一方面解决了主体结构施工阶段塔吊基础无法重新设置桩基的问题,施工工艺得到优化、同时在工期及造价方面获得收益。
参考文献:
[1] 张宇. 置于建筑结构内的固定式塔吊基础的设计研究. 建筑施工.2022.44(3).
[2] 孙凌夫 , 宋桂珍 , 侯园平 , 基于 ANSYS 的新型塔吊安装基础的力学性能分析 . 太原理工大学学报 .2015.9.
[3] 夏文,. 李攀. 塔吊基础与基坑支护结构体系相结合的设计与验算. 广州建筑.2020.48(2).