浅谈船用固定式CO2灭火装置组成及使用注意事项
张日红
九江中船消防设备有限公司
1 引言
船用二氧化碳灭火系统分为高压二氧化体系统和低压二氧化碳系统,常用为高压二氧化体系统,本文主要围绕船用固定式高压二氧化体系统进行。
船用二氧化碳灭火系统因其快速施放、高效灭火、洁净环保、对设备无损伤、灭火后快速散逸、价格低廉等等显著特点,广泛用来保护海上平台、船舶机器处所、货泵舱、装货处所、油舱、发电间、油漆间、厨房等无人处所的消防灭火
2 船用固定式CO2 灭火装置工作原理
2.1 灭火机理
在常温常压条件下,二氧化碳的物态为气相,当贮存于密闭高压气瓶中,低于临界温度 31.4℃时,是以气液两相共存的。在灭火过程中,当二氧化碳从贮存气瓶中释放出来,压力骤然下降,使得二氧化碳由液态转变为气态,稀释空气中的氧含量,氧含量的降低会使燃烧时热的产 率减少,而当热产生率低于热散失率时,燃烧就会停止下来;同时,二氧化碳施放时又因焓降的关系,温度急剧下降,形成细微的固体干冰粒子,干冰吸收周围的热量而汽化,即能产生冷却燃烧物的作用。因而,二氧化碳灭火的主要作用是窒息和冷却作用,但窒息是主要的。
2.2 工作原理
2.2.1 灭火工作原理
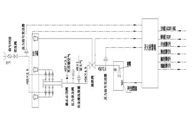
船用二氧化碳灭火系统采用高压气瓶贮存二氧化碳灭火介质;气瓶顶部设瓶头阀,用于控制灭火剂的释放;气瓶与集合管间设止回阀防止灭火介质释放后在气瓶间互串,起止回左右;总管上设置常闭施放阀,用于选择性将一定量的灭火介质释放至需要灭火的保护舱室;保护区内管路末端的设置喷嘴,用于喷洒灭火介质至保护区相应位置。
船用二氧化碳灭火系统通过手动或遥控等方式操纵施放,线将总管上的施放阀打开,再将气瓶上的瓶头阀打开,将将贮存装置内的灭火剂通过灭火管路运输,最终通过喷洒装置喷向被保护区域,扑灭火灾。
2.2.2 泄放工作原理
泄放管道连接在气瓶组件的瓶头阀的泄放接口上,安装有信号叫笛和压力信号发送器,当 CO2 气瓶瓶内压力超过(18.6±1)MPa,膜片破裂,通过该管道对外泄放,信号叫笛发出泄放报警声,压力信号发送器将泄放时产生的压力转换为电信号,并输出到灭火报警箱,发出泄放声光报警。
3 船用固定式CO2 灭火装置操作方式当保护区发生火灾时,操作人员确认火灾后可按照以下方式进行操作:
3.1 电气动/气动施放操作方式
打开遥控施放箱箱门,系统发出预施放报警信号;按下施放阀开启按钮,施放阀开启;按下 CO2 灭火剂瓶开启按钮,在经过 20S~40S 后,启动 CO2 瓶头阀,施放 CO2 灭火剂。
如在 20S~40S 延时范围内,火情已得到控制或消灭,此时可按下遥控施放箱灭火停止按钮,取消灭火操作,从而不能或终止施放 CO2 灭火剂。
气动施放灭火时,按下施放阀开启按钮操作改为打开手动开启施放阀控制气瓶瓶头阀,按下 CO2 灭火剂瓶开启按钮改为打开手动开启CO2 灭火剂控制气瓶瓶头阀。
无论是电气动还是气动开启方式,均应保证只能先开启施放阀,后开启CO2 气瓶瓶头阀。且保证至少20-40S时间保证人员撤离时间充足。

3.2 手动施放操作方式
打开拉手箱,系统发出预施放报警信号;首先取下失火区域的施放阀拉环,用力拉拉环;再取下相应钢瓶组拉环,拉下拉环,即可施放所需CO2 灭火剂进行灭火。厂家通过机械操作保证延时时间。

4 船用固定式CO2 灭火装置组成
船用固定式 CO2 灭火装置主要分为二氧化碳贮存系统和施放控制系统两部分,二氧化碳贮存系统主要是CO2 气瓶组装,施放控制系统主要由船用遥控施放箱、施放阀、船用灭火报警箱、压力信号发送器、喷嘴及连接管路等部件组成。
4.1 灭火剂贮存装置公约与规则等规定:
每个二氧化碳瓶的瓶头阀至集合管的连接管上,应装有止回阀。
二氧化碳瓶的瓶头阀至集合管的连接管可采用符合公认标准的金属挠性
灭火剂贮存装置为可拆卸框架式结构,由储液瓶、瓶头阀、集合管、泄放管、单向阀、施放连接管、泄放连接管、气动连接管、框架等组成。
4.2 遥控施放站(遥控特公约与规则等规定:
二氧化碳系统控制装置应符合下列要求:
.1 应设置两套独立的控制装置,以将二氧化碳释放至被保护处所,并确保警报装置的启动。一套控制装置用于开启将气体输送到被保护处所的管路上的阀门,另一套控制装置用于将气体从贮存的容器中放出;
.2 两套控制装置应位于一个标明具体所控制处所的释放箱内,如果放置控制装置的箱子上加锁,则一把钥匙应放在位于控制箱附近明显位置的设有可击碎玻璃罩的盒子里。
遥控施放站由2 只氮气瓶、压力表、行程开关、连接管、延时装置、箱体等组成。
遥控施放站内一只氮气瓶主要用于控制施放阀的开启,另一只主要用于控制灭火剂气瓶的开启。箱门上或者箱体旁设置钥匙盒,用于放置开启施放站的钥匙。
遥控施放站主要实现远程控制,时间延时,设备互锁等功能。有些厂家将时间延时功能独立出来,另设设备实现时间延时。
遥控施放站一般安装在 CO2 钢瓶间或消防控制室。
4.3 信号反馈装置
信号反馈装置由压力信号发送器组成。主要用于检测各管路上的压力信号,并将监测到的压力信号转换为电信号传送给报警箱
4.4 施放阀公约与规则等规定:
输送灭火剂至被保护处所的管子应设置控制阀,并清楚地标明这些管子通往的处所。
施放阀安装在施放管道上,同时具备气动和手动打开方式,阀件上带保护区铭牌。
施放阀在二氧化碳灭火系统中起到安全截止的作用,处于常闭状态,当发生人为误动作使灭火剂贮气瓶的瓶头阀打开而导致二氧化碳气体意外施放时,由于施放阀尚处于关闭状态,阻挡了气体进入施放区,可确保灭火剂不致误放致被保护处所,对施放区的人员起到保护作用,因此,需要进行灭火时,在确认施放区无人情况下,必须现通过气动或手动将施放阀由常闭状态打开到导通状态。
4.5 分配管系公约与规则等规定:
集合管至分配阀箱的总管上应装有压力表,其最大量程应为1.5 倍的工作压力。
在总管或分配阀箱上,应装设压缩空气吹洗管接头。
灭火剂分配管路的布置及喷嘴的设置应能保证灭火剂均匀分布。
如阀门的布置导致在管路区段内形成封闭管段时,在这些封闭管段上应设置压力释放阀,该阀的出口应通向露天甲板。
通往A 类机器处所和货泵舱的二氧化碳管应有足够的尺寸和喷嘴数量,以使上述处所所需二氧化碳量的能在2min 内喷入被保护处所。
对于集装箱和普通货物处所,固定管系应可使至少三分之二的气体在 10min 内被注入该处所。
对于固定散装货物处所,固定管系应可使至少三分之二的气体在 20min 内分配管系主要由灭火剂输送管路、泄放管路、吹洗管路及喷嘴等组成。
灭火剂输送管路主要将来自灭火剂贮存装置内的灭火剂运送到相应区域。管路上装配的压力表及阀用于检测管道压力。安装安全阀保证管路压力释放。
喷嘴是船用固定式CO2 灭火装置重要的装置,主要将灭火剂输送管路运输来的灭火剂,均匀地喷洒至保护区各个区域。
泄放管路主要将超压导致膜片破裂的CO2 气瓶瓶内的灭火剂,通过安全的方式排放至大气,其管路上装配的信号叫笛鸣响,通知人员泄漏发生。
吹洗管路,在总管上设置吹洗阀,主要用于做管路吹通试验,模拟管路带压状态。
4.6 报警系统
报警系统主要由报警箱、复示器、声光报警器、警铃、警示灯、汽笛等组成。
报警箱是二氧化碳灭火系统重要组成部分,主要监视系统工作状态。系统各处采集的信号,经过报警箱处理,将需要的各类信号传输给各个数据中心及保护区域。
在灭火剂释放前,报警箱发出预报警信号,同时箱门上相应舱室预释放指示灯亮;在灭火剂释放过程中,报警箱发出报警信号,同时箱门上相应舱室释放指示灯亮;在灭火剂慢性泄漏或超压泄放时,报警箱发出报警信号,同时箱门上泄漏指示灯亮。
复示器主要将报警箱监测到的状态,同步显示,一般装于驾控台、消防控制站等有人员周期性值班的场所。声光报警器、警铃、警示灯、汽笛是报警的执行机构,主要装于各保护区处所内外,用于警示人员撤离及禁止进入。
5 注意事项
5.1 使用前注意事项
(1)设置专门人员负责 CO2 间门钥匙执掌、船用固定式 CO2 灭火装置的日常维护保养及进行灭火操作。设置备用人员,以防人员不在岗时,因人员不熟悉系统操作贻误火情。
(2)检查维护人员应定期进行培训,并熟练掌握本系统的性能参数、动作程序以及各阀件的结构原理、拆装工艺。
(3)本装置密封性能要求很严格,因此必须按文件要求进行维护保养,建立相应的文件记录,确保各设备随时使用有效。
(4)在各检测机构如 PSC,船舶检修检测服务机构,船员、船检在对固定式 CO2 灭火系统进行检测、检查、检验时应本着认真负责的精神,严格把控各项检查,及时发现问题,确保系统即时可用。
5.2 使用时注意事项
(1)若发现施放站故障末排除,禁止使用电气动启动装置。
(2)当火灾发生时,操作人员应确定失火舱室(3)声光报警器响,人员应迅速撤离保护区!
(4)确定失火舱室没有人员,再关闭所有出口。
(5)确认门窗全部紧闭,人员全部撤离后,方可按照灭火站内操作说明板的说明进行操作灭火。手动操作时,应先关闭相关风机、油泵。(6)操作人员必须按照操作规程进行操作,无关人员不得打开任何阀件,防止因为误操作而施放灭火剂,引起不必要的经济损失和人身安全隐患。
(7)灭火剂施放时,人体不能接触施放管路和钢瓶以免冻伤。
5.2 使用后注意事项
4.2.3 灭火后注意事项
(1)CO2 灭火应至少 30 分钟时间,应警惕火灾在打开失火舱室时会死灰复燃,须慎重考虑,直到船到达港口,并在地方消防队到后才能打开。
(2)当火灾熄灭后,室内要进行彻底通风,人员进入舱内必须戴呼吸器,直到舱内的含氧量达到正常值为止。
4.2.4 灭火后检查
本装置灭火启用后,应将下列各部分恢复到原位置,使其工作正常,方可继续使用
(1)灭火报警箱复位;
(2)检查压力信号发送器(3)将动作过的瓶头阀复位;
4)启动钢瓶重新充装氮气,充装压力为 6.0MP(5)将动作过的施放阀复位;
(6)检查单向阀是否复位;
(7)按设计要求重新充装灭火剂,并将系统恢复,使其处于备用状态。
(8)所有软管和启动管道连接处,必须安装正确,符合系统图纸要求,保证密封。
6 结语
船用固定式CO2 灭火装置作为各船级社规范及公约要求必要配备的消防设施,在船舶安全运营中的作用是至关重要的。以上详细地介绍了船用固定式CO2 灭火装置的组成、其工作原理及使用过程中注意事项,方便各使用方及检测方对船用固定式CO2 灭火装置有理性的认识。但因各船舶工况不同,不可盲目参照前文的操作方式进行,应结合设计图纸,核查关键部件的布置,结合各制造厂家的特性,进行日常的维护保养及实操培训,以便在遇到真正火情时能够发挥关键作用。
参考文献
[1] 《国际消防安全系统规则》
[2] 《国际海上人命安全公约》
[3] 《钢质海船入级规范》
作者简介:
张日红,女,(1989-),九江中船消防设备有限公司,学士,工程师,从事船用消防工程设计。