二次滤网结构优化与改进研究
梁青祥
大唐华银电力股份有限公司耒阳分公司 421800
1 、前言
二次滤网是凝汽式汽轮发电厂重要辅机设备,其作用是过滤和去除汽轮机凝汽系统开式循环冷却水中的杂物,尽可能减少对凝汽器内冷却水管的污染。随着江河受杂物污染日趋严重,二次滤网已成为影响电厂安全经济运行的关键性设备之一。二次滤网不仅要达到过滤冷却水中的固态颗粒及贝壳杂物,防止它们进入凝汽器冷却管,还要能够去除堵塞在滤网上的污杂物,这就必须有一套高效清洗滤网和排除杂物的手段。但在电厂实际运行中受设计和结构影响,二次滤网很难达到理想的清洗排污效果,频繁出现故障,影响机组安全和高效运行,因此在实际工作中需对其进行改进优化,以提高二次滤网运行可靠性,提高排污效果,提升凝汽器真空。
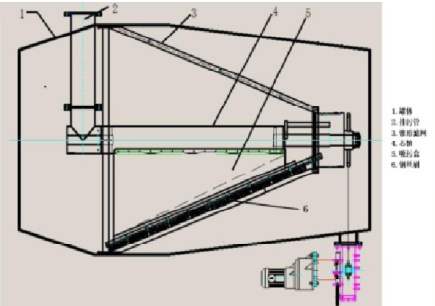
2、HEAF 旋转反冲式二次滤网简介
耒阳公司二次滤网采用的是深圳世能科泰能源管理技术股份有限公司制造的HEAF 型旋转反冲式二次滤网,其由罐体、排污管、锥形滤网、芯轴、吸污盒、钢丝刷、减速电机、排污泵等部件组成。结构图如下,滤网清洗时是减速电机通过链条带动芯轴吸污盒一起旋转,吸污盒上安装有不锈钢刷丝部件,在排污过程中刷丝可以伸入锥形滤网网孔缝隙,跟随吸污盒一起旋转, 达到清除缠绕在网孔缝隙内的纤维、塑料薄膜等难于清除的杂物。附着在锥形滤网上杂物脱落后,由外置排污泵启动形成的负压将杂物吸入排污管排放至二次滤网外部,完成清洗过程。

3、二次滤网存在的问题耒阳公司凝汽器二次滤网自投运以来主要存在如下缺陷:
3.1 设计存在缺陷:据目前国内二次滤网的使用情况看,二次滤网立式布置优于卧式布置。耒阳公司二次滤网受现场安装位置限制,采用的是卧式结构,由于芯轴单侧安装有吸污盒、钢丝刷等附件,使得转轴存在不平衡力,芯轴重量大及偏心对传动箱齿轮链条和两端轴承的造成很大影响,易造成驱动电机过载、传动链条及芯轴支持轴承损坏,检修维护工作量大。而将二次滤网布置为立式结构则轴芯前后轴承所受的偏心力就较小,轴承和传动链条所受冲击载荷较小,不易发生故障,维护工作量较小。因此,二次滤网采用立式布置方式较好,设备更可靠。
3.2 锥形滤网网孔局限性:目前锥形滤网网孔为圆形孔排列易形成涡流,增加阻力并加速杂质堆积(压差 > 500mmH₂O 时需强制排污),网孔设计不合理易导致粘附性杂质(如塑料薄膜)堵塞,导致二次滤网吸污盒排污效率低。
3.3 芯轴支持轴承易磨损:二次滤网芯轴布置在水中,重量达 2 吨,且存在不平衡力、水流夹杂泥沙等因素会加剧芯轴轴承磨损,给设备运行和维护带来困难,影响设备稳定运行。
4、改进对策及效果
针对二次滤网存在的主要问题,要提高设备可靠性,降低维护工作量,提高排污效果,需要从优化滤网结构、降低芯轴重量、轴承材料升级等几方面对二次滤网进行改进,以提高二次滤网清洗效果。
4.1 优化滤网结构:主要采取的措施如下:采用激光切割条缝形不锈钢网孔,条缝形不锈钢网孔具有良好的水力特性,同时可提高滤网杂物最佳拦截效果;采用双向排污的独特结构,使各种类型、尺寸的杂物都能很好地清除;采用不锈钢刷丝,在排污过程中钢丝刷可以伸入条缝, 跟吸污盒一起旋转,彻底清除缠绕在条缝内的纤维、塑料薄膜等难于清除的杂物;定时和定压差的双路自动控制使附着在网面的杂物及时被清除出去,确保网面的清洁。
4.2 降低芯轴重量:芯轴及吸纳盒采用轻质化铝合金材料,在降低芯轴重量的同时确保强度满足要求。必要时重构芯轴排污结构,提出双通道复合排污方案,解决排污斗受力不平衡问题。
4.3 升级轴承材料:支持轴承采用 YG11 硬质合金超硬度材料以提高其使用寿命,YG11 硬质合金是一种由碳化钨(WC)和粘结剂钴(Co)组成的复合材料。其中,碳化钨作为主要成分,提供了合金的高硬度和耐磨性;而钴作为粘结剂,增强了合金的韧性和抗冲击能力,其硬度可达 88HRA 以上,抗弯强度可达到约 3400MPa ,确保了轴承在使用过程中安全长周期运行。
4.4 改进后的效果:二次滤网改进后,实现了长周期安全稳定运行,故障率明显减少,二次滤网的具体结构性能明显提升:滤网内部与水接触的部件及紧固件均采用不锈钢结构;对于滤网传动装置、芯轴、轴承、刷丝及固定支架等易损部件,全部应采用可拆卸分解的结构方式,以便于定期检修和更换;二次滤网可自动跟踪滤网前后水压差实现程控装置自动启停,自动性能可靠。
5 结束语
从凝汽器二次滤网失效的故障模式看,相当一部分是由于水质污染而导致的, 而现阶段二次滤网结构上的特点决定了其排污的局限性。因而结合实际情况采取优化滤网结构、降低芯轴重量、轴承材料升级等多方面措施对二次滤网进行改进,可以显著提升二次滤网的拦污效果,提高设备可靠性。