铝合金模板 + 附着式升降脚手架组合小K 板施工技术总结
李辉
中国核工业华兴建设有限公司华南分公司第三工程管理部
关键字:铝合金模板、附着式升降脚手架、K 板、防护高度、板面设计
引言:
随着建筑行业的发展,工程质量提升、安全文明施工得到越来越多的重视。再次背景下铝合金模板凭借其轻质高强、结构成型好,绿色环保等特点,附着式升降脚手架凭借其因节约材料,施工速度快,安全性好等特点,住宅部分铝合金模板 + 附着式升降脚手架组合成了高层住宅结构施工时的优选。
但是在传统住宅方面,由于层间梁尺寸较小,铝模板在安装施工完成后,下一层结构施工前上一层层间梁上模板及 K 板无法及时拆除,附着式升降脚手架的预埋孔被 K 板遮挡,导致无法安装第三道支座系统,附着式升降脚手架无法及时完成提升作业,施工作业面超出架体防护高度,存在高处坠落、高空落物等安全问题。
1、存在问题
在铝合金模板 K 板施工和附着式升降脚手架组合施工时,施工现场铝合金模板施工时由于 K 板无法及时拆除,预埋螺栓孔被 K 板遮挡,附着式升降脚手架第三道支座预埋螺栓无法安装,导致附着式升降脚手架无法及时完成提升作业,施工作业面超出架体防护高度,存在高处坠落、高空落物等安全问题。
2、问题解决措施
2.1、采用临时刚性拉结点
传统的处理方法为临时采用钢管等于结构进行临时拉结,本施工技术通过对 K 板进行调整施工,确保及时安装支座系统,实现爬架的及时安全爬升。在下道支座安装完成后及时进行拆除该拉结措施,具体如下图所示:

传统施工技术,可以对附着式升降脚手架水平方向的抗倾覆有着一定得作用,但是对于架体的整体卸荷无法起到作用,存在一定得风险和隐患。
2.2、调整附着点位置
对于其他位置,也可以通过增加附着点的数量,调整所有附着使其位于竖向墙体位置,但是该施工技术,需要额外增加大量的附着点,在经济型方面并不占有一定得优势。
2.3、小K 板施工技术

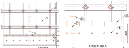
传统模板拼装示意图

小K 板施工模板拼装示意图

注释:
① -- 传统铝模板K 板 ② --200mm 高下层铝模 K 板③ --100mm 高上层铝模 K 板 ④ -- 铝合金墙板⑤ -- 铝合金模板连接销钉 ⑥ -- 附着式升降脚手架预留孔⑦ -- 附着式升降脚手架支座螺杆 ⑧ -- 附着式升降脚手架支座螺⑨ -- 附着式升降脚手架支座 ⑩ -- 铝合金模板固定螺栓施工流程:
母
本施工技术将传统铝合金模板 K 板 ① ,优化为 200mm 高 K 板②和 100mm 高K 板③, 200mm 高 K 板②和 100mm 高 K 板③以及铝合金墙板④通过铝合金模板连接销钉 ⑤ 连接。根据现场的实际情况提前设置附着式升降脚手架预留孔 ⑥ ,浇筑完混凝土后,及时拆卸 200mm 高 K 板②和 100mm 高 K 板③之间的铝合金模板连接销钉 ⑤ 以及铝合金模板固定螺栓 ⑩ ,拆除早拆部分 200mm 高 K 板 ② ,安装附着式升降脚手架支座⑨,通过附着式升降脚手架支座螺杆⑦和附着式升降脚手架支座螺母⑧将附着式升降脚手架支座 ⑨ 固定在附着式升降脚手架预留孔⑥ 中,及时提升附着式升降脚手架。
2.4、施工技术对比分析
综上对比,小 K 板施工技术,在施工操作便利性,施工安全保证及成本管理方面均具有一定得优势。
结束语:
本小 K 板施工技术从根本上解决了附着式升降脚手架和铝合金模板安装施工工程中存在的冲突问题,同时避免采用传统的临时拉结的方式方法进行加固处理,减少工人操作工作量,节约人工及材料成本。
施工技术从工艺上进行了改变,避免爬架提升、加固、拆除加固杆件导致的结构施工工期延误,一定程度上对工期有一定得节约。从根本上解决了附着式升降脚手架第三道支座无法技术安装的问题,确保附着式升降脚手架结构体系的完整,确保现场施工安全。
参考文献:
[1] 石雪洁 . 附着式升降脚手架在超高层建筑中技术探究及工程应用 [J].安徽理工大学研究生处,2015.5.24.
[2] 徐路遥等 . 附着升降脚手架预埋螺栓附墙施工技术研究及应用 [J]. 建筑施工,2020.03.25.
[3] 柳娟娟,韩会娟 . 附着式升降脚手架搭设使用中的安全措施 [J]. 技术研究,2012.04 :158.