多层工业厂房动力设备振动分析
陈正泽
中国电建集团中南勘测设计研究院有限公司 湖南长沙 410000
引言
21 世纪以来,我国在快速工业化进程和崛起的过程中,主要矿产品消费量快速增长,同时,我国矿产资源开采、选冶加工、综合利用等水平大幅提升。碎石加工过程离不开专业破碎设备。破碎设备为支持支持矿石资源的开采和加工,也在不断创新完善。设备越来越趋于大型化、集中化,而且为了节约占地,大型动力设备(如筛分机、破碎机)往往同时放置于厂房的几个楼层,设备开动时,对整个建筑的振动影响更加复杂,因此将振动的影响控制在结构安全的范围之内,控制在不影响厂房内敏感设备和操作人员正常运行的范围之尤为重要。
1 工业建筑主体结构振动的危害
若振动比较大,特别是当发生共振以后,结构构件会随着设备一起产生比较大的振幅,在不断往复的疲劳荷载作用下,结构容易发生失稳、破坏;一般的多层工业厂房,基本是采用钢筋混凝土框架结构,相较于框架 - 剪力墙或剪力墙结构,该类型结构冗余度低,若有局部破坏,容易出现连续倒塌。
支承结构(如钢筋混凝土梁)在动力荷载参与的组合作用下产生的挠度及裂缝很可能超过规范的允许限值,进而引起人的不适;外观破损,表面的钢筋保护层将无法对钢筋完全的保护作用,引起钢筋诱蚀,进而降低了构件的承载力,结构耐久性也大大降低;若由振动产生过大的结构变形,还会对设备正常使用造成影响,需要不断的调整支座的相对位置,从而造成停工或者误工;过大的振动,还会对在楼面进行巡视、检查的人员造成极度不适,影响正常的生产。
2 振动的解决办法
从设备本身出发,调整设备运行的频率,从面使设备的频率与支撑结构的自身频率错开,减小出现共振的几率。不过,为了保证整个工艺流程的顺利运行,设备的运行频率一般较固定,可调的范围有限。
从支撑结构角度来看,可以通过调整结构的整体刚度来改变结构自身频率,以错开设备频率,避免共振,如增加剪力墙、支撑等抗侧力构件 ; 当工艺不允许增加抗侧力构件时 , 调整结构跨度或者增大构件截面;合理利用填充墙刚度 ,将刚性填充墙设置在对减小楼盖水平旋转振动最有效的位置上 , 并加强填充墙与主体结构的连接;当水平振动设备布置在较高楼层时 , 结构抗侧刚度宜沿结构高度均匀布置。
采取减震隔措施。工业建筑结构在大型动力设备振动作用下,当振动控制不能满足正常使用要求时 , 应采取减小动力设备振动输出或隔振减振的措施 [1]。当动力机器基础的振动不满足人员健康、生产过程、仪器设备正常工作的容许振动标准及影响建筑物的长期使用寿命时应采用隔振措施 [2]。当楼盖结构上布置振动荷载为 3kN~15kN 的动力设备时 , 宜采取隔振措施。对高烈度区的重点设防类建筑往往采用隔震减震措施以减小地震力对结构的影响,减隔震技术已比较成熟,并已应用于动力设备基础。但该技术需要在结构计算分析时共同考虑,且在工程造价中将增加一笔不小的费用。
3 振动案例分析
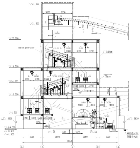
某矿山项目成品筛分车间,长 48m ,宽 28.5m ,总高 37.9m ,其中混凝土主框架高 27m ,主结构三层,并设有两个皮带机夹层,混凝土框架顶部局部设双层钢框架,用于接驳中细碎车间来料胶带机。成品筛分车间共设有8 台圆振动筛,按两层 4+4 设置,设备型号为YJK3675。下层振动筛设置于 10.000m 高程楼面,上层振动筛设置于 18.500m 高程楼面。A 轴柱尺寸为 600mm600mm ,其余柱均为 800mmx800mm. 。设有振动筛区域,柱网尺寸为 9mx7.5m ,横向框架主梁尺寸为 300mmx750mm 和 300mmx1000mm ,纵向框架主梁尺寸为 500mm1200mm ,振动筛下的次梁尺寸为 500mm1150mm ,楼板厚度 200mm ;两侧副跨尺寸分别为 7.5m 7.5m 和 6.0m 7.5m ,横向主梁尺寸为 300mmx750mm ,纵向主梁尺寸为300mmx750mm ,次梁尺寸为 250mmx700mm ,次梁布置间距为 2.5m ,楼板厚度120mm⨀ 。从厂家提供的设备订货资料可知,筛分设备的振动频率约为 15HZ
采用盈建科建筑结构设计软件对厂房进行整体分析,第一、二阶振型为整体的水平振动,频率分别为(0.936HZ,1.0003HZ),第三阶振型为整体的转动,频率分别为(1.147HZ),从整体分析可以看出:厂房整体的水平振动并不会与设备的振动产生共振。

采用盈建科动力机器基础分析软件,在三维整体模型中进行动力分析,三个方向的频率结果如下面三个图所示;

图1 x 向位移频响曲线
图2 y 向位移频
图
向位移频响曲线

从三个图中可以看出,X 方向频率5HZ 左右时,位移最大,Y 方向频率2.5HZ左右时,位移最大,Z 方向频率 9.8HZ 左右时,位移最大。由此得出,X,Y 方向的共振频率与设备的频率相差较大,不会发生这两个方向的共振;但 Z 方向的共振频率与设备的频率相差不大( 15HZ/9.8HZ=1.53 ),虽然不一定发生这个方向的共振,但在实际运行过程中也会出现比较明显的振动感,设计中应该避免。
4 结论
在项目工程设计过程中,应该高度重视设备基础的动力分析,特别是在多层工业厂房中的动力设备,一旦出现振动问题,后续处理将很困难,在有停产停工的情况下并不像直接落地的设备基础一样可以有相对较多的方式处理。
动力设备传统的计算方式是:在进行常规分析的时候,把设备荷载乘一个动力系数,输入模型,按该计算结果进行计算分析。该方式仅能保证在静力荷载作用下,结构构件的配筋基本同时满足静力和动力荷载作用的情况,但无法评估支撑结构本身的振动问题,需要加以动力分析来判断。
对于处理设备振动问题,最好的方式应该还是主动规避,即采取减隔震措施,从源头调整设备的振动频率,相较于从结构方案来被动调整结构自身的刚度,往往更为方便、简单、可靠。
参考文献:
[1] GB 50007-2011 建筑地基基础设计规范 [S. 北京 : 中国建筑工业出版社 ,2012.