一种中学物理力学实验多功能演示装置设计及其教学应用
王万福 陈晓莉
西南大学物理科学与技术学院 重庆 400715;重庆市黔江新华中学校 重庆 409000
1 引言
高中物理教学中力的合成与分解以及共点力平衡问题既是教学的重点又是教学的难点。人教版必修一教材上探究两个互成角度的力的合成规律实验装置如图 1 所示, 主要实验器材有橡皮条、 两个弹簧测力计、木板等。共点力平衡有许多模型,如斜面模型、轻杆模型、连接体模型、 答这些模型中力的平衡问题学生往往感到困难,特别是条件变化引起的动态平衡过程更 受力情况会随着某个力的大小、方向以及两个力之间的 想象力才能得出物体受力的变化规律 总结了正交分解法、矢量三角形法以及 演示实验,如文献[1] 利用 GeoG 衡受力变化情况以动态的形 形象化的能力;文献则应用正 化实验测定,对三力作用下的共点力动 进了高中物理与数学、信息技术等学科的相互融
教学中我们发现学生按照教材上力的合成与分解实验方案完成这个实验的时候,存在以下问题:(1)由于要两个分力作用拉一次,一个合力作用再拉一次,实际操作两次不是很方便;(2)只能在桌面上操作,如果是教师演示就不能立起来让全体学生都看到实验过程;(3)使用传统测力计读数误差较大;(4)橡皮筋形变不能判断十分准确,造成实验的结果误差也比较大。另外学生对“共点力平衡”中的晾衣绳模型的理论分析结果感到质疑,觉得分析结果不可思议,他们迫切希望能够亲眼观察一下晾衣绳模型中条件变化后晾衣绳受力大小的动态变化过程,查阅文献发现,目前还没有演示晾衣绳模型动态平衡问题的实验装置。基于此,我们经过反复思考,研制了一种更加直观、取材方便、制作简单、能克服教材上力的合成与分解实验缺陷、能演示晾衣绳模型动态平衡问题的多功能力学实验装置,如图2 所示。
图 1 教材探究二力合成规律实验装置示意图

图2 实验装置实物图

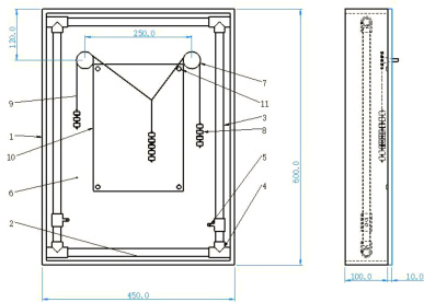
装置设计平面示意图如图 3 所示,设计思想:(1) 定滑轮可改变力的方向,力的大小不变;(2) 砝码的重力满足 G
mg ;(3) 绳子可等值地传递力的大小,并体现力的方向[4]。主要制作材料与制作步骤介绍如下。
图 3 装置平面设计示意图

装置设计图 3 中,1 为装置外框支架,需要 600*100*10mm 的防腐木板 2 块,450*100*10mm 的防腐木板 2 块 ;2 与 3为实验固定支架,需要长 445mm、直径 19mm 不锈钢管 2 根,长 550mm、直径 19mm 不锈钢管 2 根;4 为连接部件,需要直径 20mm 塑料三通管 4 个;5 为长 100mm、直径 20mm 的能在固定钢管上移动的塑料水管 2 截,各附带有一个塑料钉;6 为长600*450*5mm 的透明亚克力背板 1 块 ;7 为滑轮 3 个;8 为 50g 钩码 12 个,200g 钩码 1 个;9 是细线若干;10 为 A4 纸 1 张,11 为直径10mm 厚度2mm 圆形磁铁8 个;另外胶水若干,细铁钉若干。
2.2 制作步骤
2.2.1 制作装置外框架
首先在 2 块 600*100*10mm 的防腐木板离上端和下端 50mm 处中心位置各钻一个直径 19mm 的圆孔,然后用 2 块600*100*10mm 防腐木板为竖板,2 块 450*100*10mm 防腐木板为横板制作成一个 450*600*10mm 的木框架子。
2.2.2 制作钢管实验固定支架
首先将带有塑料钉的 2 截长 100mm、直径 20mm 的塑料水管分别穿在 2 根长 550mm、直径 19mm 不锈钢管上,然后 2 根长445mm、直径 19mm 不锈钢管作为横杆,2 根长 550mm、直径 19mm 不锈钢管作为竖杆,用 4 个直径 20mm 塑料三通管连接成一个固定钢管支架,注意两竖杆离横杆端口50mm 距离。
2.2.3 组合连接
方法二,如图 7 所示,用圆形磁铁将 A4 纸固定在背板上,再将三条细绳打一个共同的绳结 P,中间细绳上挂上几个钩码,左右两条细绳绕过定滑轮后挂上钩码(钩码个数根据需要调整),待稳定后,用铅笔靠近每条细线描点,记录绳结 P 的位置、每条绳子的方向以及二个分力 F 、F 与合力 F 的大小。取下白纸,根据力的图示进行规范作图,能够得到和理论相符的实验结果。
方法一,如图 6 所示,用圆形磁铁将 A4 纸固定在背板上,再将三条细绳打一个共同的绳结 P,其中左右两条细绳绕过定滑轮,绳的两端挂上钩码(钩码个数根据需要调整),用弹簧测力计钩在绳结 P 的另一条细线往上拉。待稳定后,用铅笔靠近每条细线描点,记录绳结 P 点位置、每条绳子的方向以及二个分力 F1、F2 与合力 F 的大小。取下白纸,根据力的图示进行规范作图,能够得到和理论相符的实验结果。
首先将固定钢管支架的上下两横杆分别穿在木框架子两竖板的圆孔里,然后用细铁钉将长 600*450*5mm 的透明亚克力背板钉在木框架子背面,再将2 个定滑轮固定在亚克力背板适当位置上,最后将细线两端分别系在两竖钢管上的塑料水管上。3 装置应用
3.1 演示初中物理二力平衡条件
如图 4 所示,一根细线绕过两定滑轮,用颜色笔在两定滑轮之间细线任一点 P 涂上颜色,再在细线两端悬挂质量相同的钩码,会观察到两钩码静止不动,处于平衡状态。则两滑轮中间细线上任一点P 受到绳子两侧的拉力F 与F 为一对平衡力,F1 = F2,由此说明,滑轮之间绳子任意一点所受的力为平衡力,从而得出二力平衡的条件。
2.1 主要制作材料
图 5 演示同直线上二力的合成示意图

图 4 演示二力平衡示意图

3.2 演示同直线上二力的合成与分解
图6 方法一实验示意图

图7 方法二实验示意图

3.4 演示晾衣绳模型中条件变化后衣绳受力大小的动态变化过程
如图5 所示,保持图4 中F 不变,将F 用同向向右的两个拉力F 与F 代替,使P 点受力平衡,钩码保持静止不动,F3 与F4 的共同作用与F2 相同 则F3+F4=F2,即同方向的二力F3 与F4 可合成为力F2,也可以认为力F2 可分解为同方向的二个力 F 与 F [5]。实验中若在左边再加上力 F ,右边加上力 F ,使 P 点受力平衡,钩码保持静止不动,同样 F 与 F 的共同作用与F2 相同,即反方向的二力F3 与F4 可合成为力F2,也可以认为力F2 可分解为反方向的二个力F3 与F4。
3.3 探究两个互成角度的力的合成与分解规律
如图 8 所示,先将左边立柱 塑料钉滑动至立柱的中间某位置,将一条细绳的两端分别系 的衣物,左测细绳剪开接上一个力传感器。由于细绳中各部分张力 EPF1=F2 ,其大小可由力传感器读出。实验时,将右边立柱上的塑料钉向上 不变;将右边立柱向右移动,发现绳中拉力变大;若换挂质量更大的重物, 力增大。 实验现象与理论定量计算分析结果一致,从而让学生观察到晾衣绳模型中条件变化后晾衣绳受力大小的动态变化过程。
图8 晾衣绳模型演示实验示意图

4 结束语
设计制作的实验装置优势在于:(1)具有多个功能。一是用于初中物理力学实验,演示二力平衡条件;二是用于高中物理实验,演示同一直线上二力的合成与分解、探究两个互成角度的力的合成规律、演示晾衣绳模型中条件变化后衣绳受力大小的动态变化过程。(2)容易操作。教材上探究力的合成与分解规律的实验装置要分两次操作,本装置一次操作就能完成,并准确记录三条细绳的方向。(3)填补晾衣绳模型演示实验空白。
教学实践表明,该装置实验现象明显、形象直观,有助于学生对力的平衡、力的合成与分解规律的理解。另外,本装置结构紧凑,外型简洁美观,取材方便,制作简单,方便推广。
参考文献:
[1] 张海锋 . 11,F GeoGebra 软件对共点力的动态平衡问题的可视化教学 [J]. 物理通报 ,2004 年第 9 期:108-111.
[2] 周翔 . 共点力平衡问题的解题技巧 [J]. 数理天地(高中版),2024,10 :47-48.
[3] 王鹏,许璇璇,张季谦. 基于STEM 理念探究共点力的动态平衡问题[J]. 物理教学探讨.2024 年第10 期:81-83.
[4] 闫彬彬,李耀宗,华雪侠,赵宇,喻盛欢 . 力的合成与分解的实验演示 [J]. 中国现代教育装备 .2016 年第 1 期:29-30.
资助项目:西南大学研究生优质课程建设项目(物理教学设计与案例研究)资助,项目编号:SWUYJS241002.
作者简介:王万福,男,黔江人,中学一级教师,西南大学硕士研究生,主要从事中学物理教学研究.
通讯作者:陈晓莉,女,梁平人,教授,主要从事课程与教学论(物理)研究工作.